陇川县自然资源局

陇川县自然资源局关于对陇川县麓川华庭修建性详细规划设计方案的变更公示

浏览量:583    作者: 日期:2025/10/24

项目名称:陇川县麓川华庭修建性详细规划设计方案

用地性质:居住用地

申报类别:建设用地规划许可证和建设工程规划许可证

申报单位:陇川县恒益置业有限公司

规划审批经办单位:陇川县自然资源局

公示类别:变更公示

公示时间:2025年10月24日至2025年11月3日

公示网址:https://www.dhlc.gov.cn/gtj/Web/_M5028_28D054BWER4CLRWRU0JX8N87BG_1.htm

公示组织单位:陇川县自然资源局 

项目简介

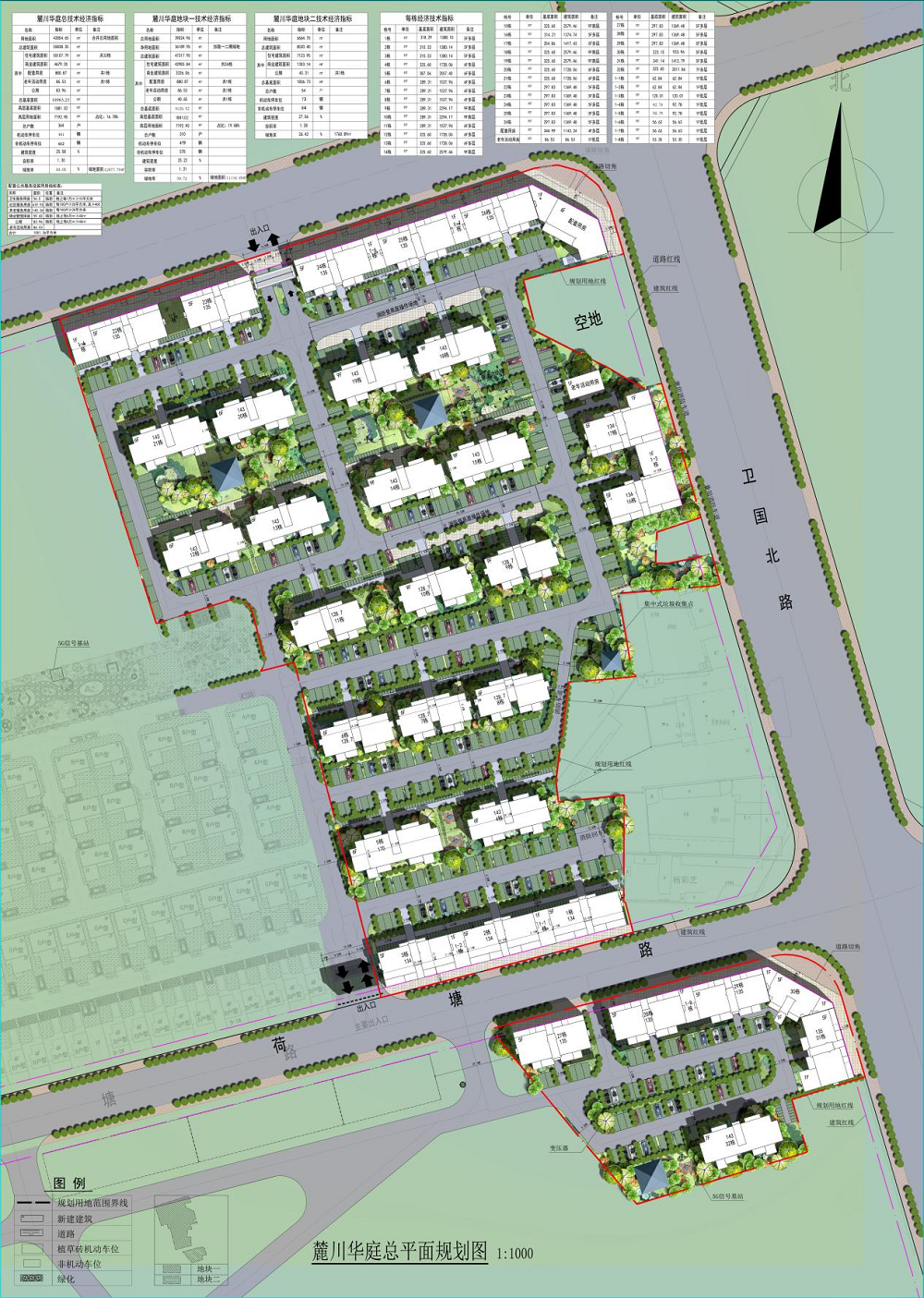
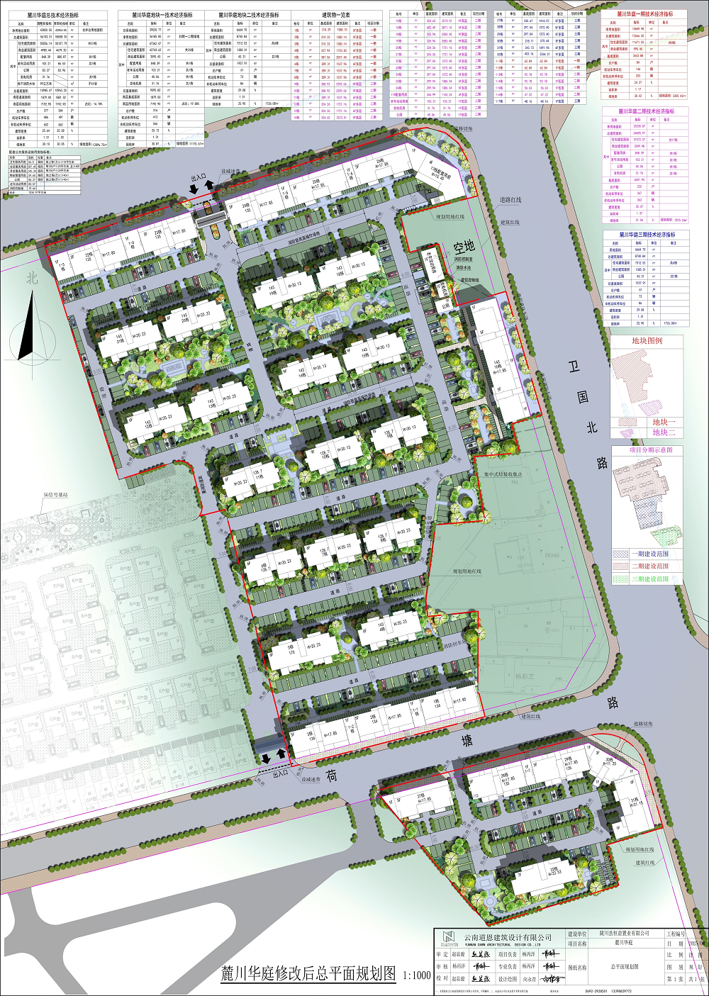
陇川县麓川华庭建设项目位于云南省德宏傣族景颇族自治州陇川县章凤荷塘路,东邻卫国北路,南接荷塘路,西邻麓川合院一二期,北接稻香路。麓川华庭建设项目原审批规划总用地面积为42854.65㎡,总建筑面积55838.35㎡,建筑占地面积10963.25㎡,容积率1.30,建筑密度25.58%,绿地率30.05%,总户数364户,机动车停车位491个,非机动车位662个。

变更后规划总用地面积为42850.55㎡,总建筑面积56103.31㎡,建筑占地面积10985.47㎡,容积率1.31,建筑密度25.64%,绿地率30.10%,总户数377户,机动车停车位486个,非机动车位652个。

 

备注:

对以上公示项目有异议者,请在公示期限内以书面形式将意见和建议反馈到陇川县自然资源局城乡规划中心(地址:陇川县章凤镇勐宛南路15号;邮编:678700;联系电话:0692-7172468)。

 

附件:

1、项目区位示意图

麓川合院区位图111

2、变更前规划总平面设计图

调整前1111

3、变更后规划总平面设计图

调整后总平面彩图1111

4、经济技术指标

经济技术指标1111

5、鸟瞰图

鸟瞰图1111

6、效果图

 1111

 2222

 3333

4444

5555

6666

7777

8888

9999

10101010

11 11 11 11

陇川县自然资源局

2025年10月24日

文章来源: