陇川县自然资源局

陇川县自然资源局关于对陇川欣旺能源有限公司陇川产业园集中供热项目的批前公示

浏览量:1497    作者: 日期:2025/3/19

项目名称:陇川欣旺能源有限公司陇川产业园集中供热项目

用地性质:工业用地

申报类别:建设用地规划许可证和建设工程规划许可证

申报单位:陇川欣旺能源有限公司

规划审批经办单位:陇川县自然资源局

公示类别:批前公示

公示时间:2025年3月19日至2025年3月27日

公示网址:https://www.dhlc.gov.cn/gtj/Web/_M5028_28D054BWER4CLRWRU0JX8N87BG_1.htm

公示组织单位:陇川县自然资源局 

项目简介

陇川欣旺能源有限公司陇川产业园集中供热项目位于云南省德宏州陇川产业园区。该项目规划用地面积:33333.33平方米(50亩),总建筑面积:15257.91平方米(计容建筑面积:29167.82平方米),建筑占地面积:16540.11平方米,绿地面积:5400平方米。容积率0.88,建筑密度49.6%,绿地率16%,机动车停车位20个。

 

 

备注:

对以上公示项目有异议者,请在公示期限内以书面形式将意见和建议反馈到陇川县自然资源局城乡规划中心(地址:陇川县章凤镇勐宛南路15号;邮编:678700;联系电话:0692-7172468。

 

附件:

1. 区位分析图

区位分析图1111

2. 总平面规划设计图

总平图1111

3. 主要经济技术指标

经济技术指标11111

4. 分期建设图

分期建设图11111

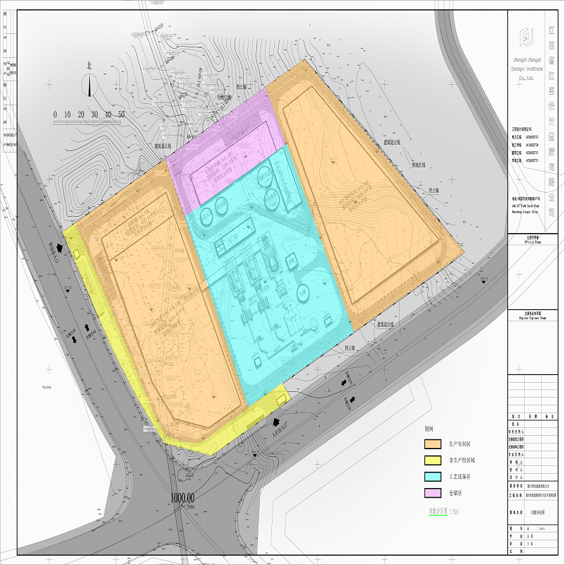
5. 功能分区图

功能分区图1111

6. 鸟瞰图

鸟瞰图1111

7. 效果图

效果图11111

 

 

 

陇川县自然资源局

2025年3月19日

文章来源:陇川县自然资源局