陇川县自然资源局

陇川县自然资源局关于对杨添宇建设项目的批前公示

浏览量:1292    作者: 日期:2024/9/24

项目名称:杨添宇建设项目

项目用地性质:其他商服用地

申报类别:建设用地规划许可证和建设工程规划许可证

申报单位:杨添宇

规划审批经办单位:陇川县自然资源局

公示类别:批前公示

公示时间:2024年9月24日至2024年10月8日

公示网址:https://www.dhlc.gov.cn/gtj/Web/_M5028_28D054BWER4CLRWRU0JX8N87BG_1.htm

公示组织单位:陇川县自然资源局 

项目简介

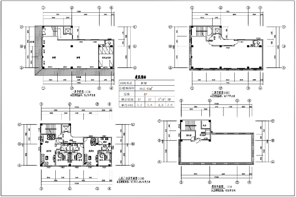
杨添宇建设项目位于陇川县章凤镇新城路园林小区。项目用地196.54平方米,建筑占地面积164.74平方米,总建筑面积692.41平方米,容积率3.52,建筑密度83.82%,非机动车位6个。

 

备注:

对以上公示项目有异议者,请在公示期限内以书面形式将意见和建议反到陇川县自然资源局城乡规划中心(地址:陇川县章凤镇勐宛南路15号;邮编:678700;联系电话:0692-7172468。

 

附件:

1.项目区位图

区位示意图1111

2.总平面规划设计图

总平图1111

3.施工平面图

施工平面图1111

4.主要经济技术指标

经济技术指标111111

5.效果图

效果图1111

 [附件: 附件6:杨添宇房产资料及建房方案与相邻建筑关系的技术分析说明

 

 

                                                                                                 陇川县自然资源局

                                                                                                          2024年9月24日

文章来源:陇川县自然资源局