项目名称:110kv弄彦输变电工程项目修建性详细规划方案
用地性质:商业服务业设施用地
申报类别:建设用地规划许可证和建设工程规划许可证
申报单位:云南电网有限责任公司德宏供电局
规划审批经办单位:陇川县自然资源局
公示类别:批前公示
公示时间:2024年1月11日至2024年1月19日
公示网址:https://www.dhlc.gov.cn/gtj/Web/_M5030_28D054BWER4HZYXWRS8QREO0XP_1.htm
公示组织单位:陇川县自然资源局
项目简介
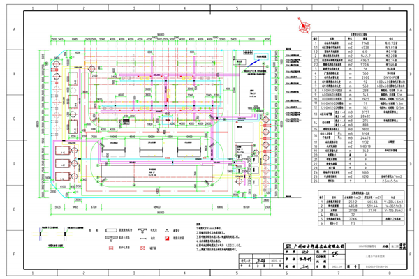
110kV弄彦输变电工程建设项目位于陇川县章凤口岸进出口加工区东南部,弄彦村以西500米农田内。该项目规划用地总面积7148.05㎡,主要建筑内容为新建主控楼、配电装置楼和水泵房各一座,110kV配电装置、35kV架构、10kV架构、站区内道路及其他附属设施。总建筑面积1083.18㎡,建筑密度:9.58%,容积率:0.15,建筑系数:48.76%,绿地率:15.2%。
备注:
对以上公示项目有异议者,请在公示期限内以书面形式将意见和建议反到陇川县自然资源局城乡规划中心(地址:陇川县章凤镇勐宛南路15号;邮编:678700;联系电话:0692-7172468。
附件:
1、项目区位示意图
2、总平面布置图
3、经济技术指标
4、项目功能分区图
5、公共设施布置图
6、鸟瞰图
7、效果图
陇川县自然资源局
2024年1月11日
附件:1、项目区位示意图
附件: 2、总平面布置图
附件: 3、经济技术指标
附件: 4、项目功能分区图
附件: 5、公共设施布置图
附件: 6、鸟瞰图
附件:7、效果图








滇公网安备 53310002000504号 滇ICP备17006881号-1 联系电话:0692-7171476
政府网站标识码:5331240003 邮箱:478564041@qq.com 地址:陇川县章凤镇卫国北路38号 邮编:678700