项目名称:陇川县城市生活污水处理厂二期项目规划设计方案
项目用地性质:公共基础设施用地
申报类别:建设用地规划许可证和建设工程规划许可证
申报单位:县住房和城乡建设局
规划审批经办单位:陇川县自然资源局
公示类别:批前公示
公示时间:2023年7月27日至2023年8月4日
公示网址:http://www.dhlc.gov.cn/gtj/Web/index.aspx
公示组织单位:陇川县自然资源局
项目简介:
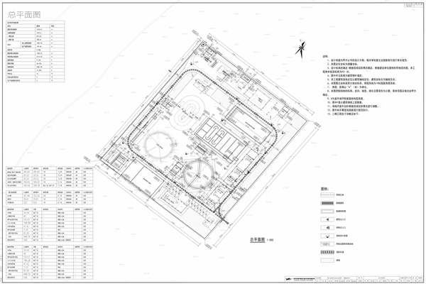
本项目位于陇川县章凤镇城市生活污水处理厂内。为陇川县城市生活污水处理厂二期建设项目,主要服务于陇川县城和章凤口岸。项目规划用地 15126.49平方米,总建筑面积 1673.4平方米(其中已建874.53平方米,扩建798.87平方米)。建筑密度9.23%,建筑系数36.42%容积率0.098,绿地率15.09%,生产设施机动车停车位2个,非机动车停车位5个。
备注:
对以上公示项目有异议者,请在公示期限内以书面形式将意见和建议反馈到陇川县自然资源局城乡规划中心(地址:陇川县章凤镇勐宛南路15号;邮编:678700;联系电话:0692-7172468。)
附件: 1.项目区位图
2. 总平面规划设计图
3. 分期建设图
4.扩建子项分析图
5. 鸟瞰图
6. 建筑单体效果图
陇川县自然资源局
2023年7月27日
附件1:项目区位图

附件2:总平面规划设计图
附件3:分期建设图
附件4:扩建子项分析图

附件5:鸟瞰图
附件6:建筑单体效果图
滇公网安备 53310002000504号 滇ICP备17006881号-1 联系电话:0692-7171476
政府网站标识码:5331240003 邮箱:478564041@qq.com 地址:陇川县章凤镇卫国北路38号 邮编:678700