项目名称: 陇川勐宛山水住宅小区项目
项目用地性质: 居住用地
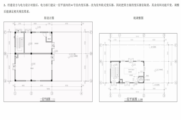
申报类别:建设用地规划许可证和建设工程规划许可证
申报单位:陇川宏林房地产开发有限公司
规划审批经办单位:陇川县自然资源局
公示类别:变更公示
公示时间:2023年7月26日至2023年8月3日
公示网址:http://www.dhlc.gov.cn/gtj/Web/index.aspx
公示组织单位:陇川县自然资源局
特别申明事项:根据勐宛山水住宅小区项目建设推进情况和2022年11月1日《关于对陇川县勐宛山水住宅小区(一期)局部规划调整的公示》公示后的反馈意见,决定作废2022年11月1日《关于对陇川县勐宛山水住宅小区(一期)局部规划调整的公示》和公示内容,现将勐宛山水住宅小区项目局部规划调整方案进行公示公告。
项 目 简 介
陇川宏林房地产开发有限公司投资开发的勐宛山水住宅小区项目位于陇川县章凤镇卫国南路西侧,完全中学东侧。该项目于2019年取得《建设工程规划许可证》(许可证号:建字第陇川县201900006号),规划总用地:136271.51㎡(204.4亩),规划许可总建筑面积136973.11平方米,共127栋。
局部规划变更内容:
一、部分道路宽度规划调整:10栋南侧道路;80-93栋南侧道路;66-79栋南侧道路;54-65栋南侧道路;44-53栋南侧道路;38-43栋南侧道路;32-37栋南侧道路;24、25栋南侧道路。
二、部分道路线型优化调整:1、2栋与24栋间:东移2栋东侧原道路2.85-3.26米成住宅侧院;2、3栋与26栋间:东移3栋东侧原道路0.7-1.4米成住宅侧院;3、7栋与54栋间:
东移7栋东侧原道路0.5-1.4米成住宅侧院;4、8栋与66栋间、9栋与80栋间;5、中心绿地花园与123栋间,西移123栋西侧原道路0.52-2.8米成住宅侧院。
三、取消了123栋与121之间4.8米的小区道路。
四、将121栋123栋前道路由8.8米调整为7米。
五、消防给水管网及室外消火栓调整变更方案。
六、规划设计路灯数量及方案变更调整。
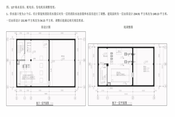
七、127栋水泵房、配电房、发电机房调整变更方案。
八、公共厕所调整变更方案。
九、大门门卫室调整变更方案。
十、院子的栅栏方案。
十一、南广场和中心广场调整变更方案。
备注:
对以上公示项目有异议者,请在公示期限内以书面形式将意见和建议反馈到陇川县自然资源局城乡规划中心(地址:陇川县章凤镇勐宛南路15号;邮编:678700;联系电话:0692-7172468。)
附件: 1. 原规划与局部调整总平面设计图
2. 鸟瞰图
3. 道路调整变更对比图
4. 消防分析图
5. 道路交通分析图
6. 消防给水管网及室外消火栓调整变更对比图
7. 水泵房、配电房、发电机房调整变更对比图
8. 公共厕所调整变更对比图
9. 大门门卫调整变更对比图
10. 院子的栅栏调整变更对比图
11. 南广场和中心广场调整变更对比图
12. 道路路灯调整变更对比图
陇川县自然资源局
2023年7月26日
附件1:原规划与局部调整总平面设计图



附件2:鸟瞰图
附件3:调整部分道路宽度及取消部分道路

附件4:消防分析图
附件5:道路交通分析图
附件6:消防给水管网及室外消火栓调整变更对比图
附件7:水泵房、配电房、发电机房调整变更对比图

附件8:公共厕所调整变更对比图

附件9:大门门卫调整变更对比图
附件10:院子的栅栏调整变更对比图
附件11:南广场和中心广场调整变更对比图
附件12:道路路灯调整变更对比图
滇公网安备 53310002000504号 滇ICP备17006881号-1 联系电话:0692-7171476
政府网站标识码:5331240003 邮箱:478564041@qq.com 地址:陇川县章凤镇卫国北路38号 邮编:678700