项目名称: 泰达佳园
项目用地性质: 居住用地
申报类别:建设用地规划许可证和建设工程规划许可证
申报单位:陇川泰达房地产开发有限公司
规划审批经办单位:陇川县自然资源局
公示类别:批前公示
公示时间:2022年8月11日至2022年8月19日
公示网址:http://www.dhlc.gov.cn/gtj/Web/index.aspx
公示组织单位:陇川县自然资源局
项 目 简 介
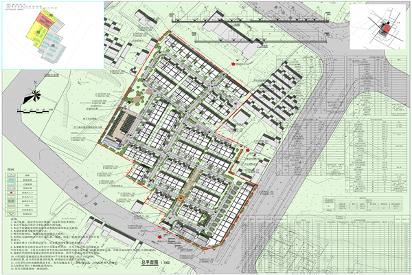
泰达佳园住宅小区建设项目位于陇川县章凤镇泰安路以北,勐宛南路以西(县人武部东侧,县疾控中心对面)。该建设项目于2020年3月4日进行了首次行政审批批前公示,但因人防执行政策出现调整,泰达佳园住宅小区修建性详细规划方案中人防设计专项规划方面存在重大缺失,随后广西华信工程设计股份有限公司进行了调整修建性详细规划。
为认真贯彻落实中央、省委省政府关于加强城市规划管理工作的相关指示精神,现根据《云南省阳光规划公共监督管理实施办法》对修改完善后的《泰达佳园住宅小区修建性详细规划方案》进行二次行政审批批前公开公示。主要规划经济技术指标如下:总用地面积:36602.40平方米(54.90亩),总建筑面积:42927.64平方米,容积率1.14,建筑密度33.83%,绿地率30.03%,机动车停车泊位282个,非机动车停车位52个。
备注:
对以上公示项目有异议者,请在公示期限内以书面形式将意见和建议反馈到陇川县自然资源局城乡规划中心(地址:陇川县章凤镇勐宛南路15号;邮编:678700;联系电话:0692-7172468。)
附件:1.总平面规划设计图
2.鸟瞰图
3.临街效果图方案
陇川县自然资源局
2022年8月11日
附件1:
附件2:
附件3:


滇公网安备 53310002000504号 滇ICP备17006881号-1 联系电话:0692-7171476
政府网站标识码:5331240003 邮箱:478564041@qq.com 地址:陇川县章凤镇卫国北路38号 邮编:678700